Aktuelle Meldungen der Stadt Hanau

RSS-Feed abonnieren


[Suche]

Druckansicht

Hanau, 14. Oktober 2019
Grünes Licht für den Pioneer Park Hanau
Magistrat stimmt Entwurf für den Bebauungsplan zu – Stadtverordnete entscheiden am 28. Oktober

Die Ampeln für das größte Bauprojekt der Hanauer Nachkriegsgeschichte stehen auf Grün: Der Magistrat hat am Montag dem Bebauungsplan für die ehemalige Pioneer-Kaserne in Wolfgang zugestimmt. Auf dem rund 50 Hektar großen Gelände will die LEG Hessen-Hanau GmbH mit dem Pioneer Park Hanau das „Wohnquartier der Zukunft“ errichten. Vorgesehen sind rund 1600 Wohneinheiten, die bis zu 5000 Menschen eine neue Heimat bieten sollen. Die Stadtverordneten müssen den Bebauungsplan noch in ihrer Sitzung am 28. Oktober beschließen.

„Wir werden mit dem Pioneer Park Hanau nicht nur dem dringenden Wohnraumbedarf im Rhein-Main-Gebiet gerecht, sondern schaffen dort ein attraktives, zentrumsnahes und kostenmäßig differenziertes Angebot“, sagte Oberbürgermeister Claus Kaminsky. Auf der ehemaligen US-Kaserne würden Wohnungen für jedes Klientel, für jeden Geldbeutel und für jedes Alter geschaffen. „Dort wird ein Quartier entstehen, das dank der Nähe zur Bulau und großzügigen Grünflächen eine hohe Lebensqualität bietet. Zudem wird es bei Energieversorgung, Mobilität und Infrastruktur Maßstäbe setzen“, so Kaminsky. Er verweist in diesem Zusammenhang auch auf den „Game Changer Award“, den der Pioneer Park Hanau unlängst beim „Immobilien-Dialog Metropolregion Rhein-Main“ gleich in zwei Kategorien gewinnen konnte – mit dem Hinweis, dass das neue Hanauer Quartier ein „zukunftsweisendes Projekt für die Siedlungsentwicklung im Rhein-Main-Gebiet“ sei.

Die Jury lobte dabei insbesondere die außergewöhnliche Konstellation aus öffentlicher Hand und privatem Unternehmen, die für die Projektentwicklungsgesellschaft LEG Hessen Hanau GmbH gewählt worden sei. Die LEG Hessen-Hanau ist ein gemeinsames Unternehmen der Stadt Hanau und der DSK | BIG Gruppe. Die zur DSK | BIG Gruppe gehörenden Unternehmen LEG Entwicklung GmbH und DSK Deutsche Stadt- und Grundstücksentwicklungsgesellschaft mbH & Co. KG halten gemeinsam 90 Prozent der Unternehmensanteile der LEG Hessen-Hanau GmbH. Die weiteren zehn Prozent hat die städtische BAUprojekt Hanau GmbH. Trotz unterschiedlicher Unternehmensanteile haben sich die Partner auf eine gleichberechtigte Stimmverteilung verständigt. Ein innovatives Vorgehen, das sicherstellt, dass alle Entscheidungen einvernehmlich gefällt werden.

„Die Pioneer-Kaserne ist das größte Konversionsprojekt in Hanau. Eine Steuerung der städtebaulichen Qualität ist bei einem Projekt dieser Größenordnung alleine über das Planungsrecht nicht zu erreichen – deshalb haben wir einen neuen Weg der Kooperation von öffentlicher Hand und privatem Kapital gesucht und beschritten“, so Hanaus Oberbürgermeister. Mit der DSK | BIG Gruppe habe man qualifizierte und verlässliche Partner gefunden, die „unsere anspruchsvollen Vorgaben nahezu zu 100 Prozent erfüllt haben“.

Dass die Zusammenarbeit hervorragend funktioniert, zeigt sich für Kaminsky auch an der hohen Geschwindigkeit bei der Realisierung. Rund drei Jahre nach Gründung der Gesellschaft liege nun ein beschlussreifer Bebauungsplan vor, der alle Herausforderungen der Nachnutzung einer ehemals militärisch genutzten Fläche, die auch noch in unmittelbarer Nähe zu Industrie, wichtigen Verkehrsachsen und einem FFH-Gebiet liege, berücksichtigt. Das Planungsbüro AS+P Albert Speer und Partner erläuterte dem Magistrat am Montag ausführlich, welche Problemstellungen es zu bewältigen galt – von Altlasten und Denkmalschutz über Geruchs- und Lärmbelästigung bis hin zu Hochwasser- und Naturschutz. Zu all diesen Themen sind Gutachten erstellt und die Träger öffentlicher Belange gehört worden. Die daraus abgeleiteten Maßnahmen haben beim Bebauungsplan-Verfahren Berücksichtigung gefunden. An dieser Stelle sei auch dem Regierungspräsidium Darmstadt für die Unterstützung und die konstruktive Begleitung des Verfahrens zu danken, so OB Kaminsky.

Parallel zur Planung sind auf dem Gelände bereits die Erschließungsarbeiten angelaufen und inzwischen weit fortgeschritten. Auf dem Teilgebiet „Triangle Housing“ haben darüber hinaus bereits die Hochbauarbeiten begonnen – für diesen Bereich hatte der Magistrat bereits im Februar die sogenannte Teilplanreife festgestellt. Im „Triangle Housing“ realisiert die LEG Hessen-Hanau eine neue Form des „bezahlbaren Wohnens“. Dafür werden 17 Bestandsgebäude kernsaniert, in denen 370 hochwertige Eigentumswohnungen entstehen. Diese werden unter dem üblichen Marktpreis angeboten – aber nur zur Eigennutzung.

Das Interesse am Pioneer Park Hanau ist groß – nicht nur an den Eigentumswohnungen im Triangle Housing, von denen bereits mehr als die Hälfte verkauft oder fest reserviert ist, sondern auch an den Einzelhaus-Grundstücken, die seit Frühjahr für private Häuslebauer angeboten werden. Die Flächen und Gebäude, die von verschiedenen Bauträgern entwickelt werden sollen, sind bis auf wenige Ausnahmen inzwischen allesamt verkauft. Wichtig ist der LEG Hessen-Hanau dabei, dass die Historie des Ortes gewahrt und die prägnanten Gebäude der Mitte der 30er Jahre von der Wehrmacht erbauten Kaserne erhalten bleiben.

Im Pioneer Park soll Historie aber auch auf Zukunft treffen, deshalb haben die Entwickler großen Wert auf innovative Konzepte bei Versorgung und Mobilität gelegt. Für eine vollumfängliche, zukunftsweisende Infrastruktur haben die Stadtwerke Hanau und der Energiedienstleister GETEC die PionierWerk Hanau GmbH gegründet. Das Unternehmen verfolgt das Ziel, das neue Wohnquartier klimaneutral zu versorgen. Das umfasst neben der traditionellen Wärmeversorgung auch Angebote zu Breitbandinternet, Smart Home und Mobilität. Das Energiekonzept sieht den Einsatz von drei Blockheizkraftwerken (BHKW) zur effizienten Erzeugung von Wärme und Strom sowie Brennwertkessel und Wärmepumpentechnologie vor. Ergänzt wird das nachhaltige Angebot im Pioneer Park von 15 E-Mobilitätsstationen, an denen sich die künftigen Bewohner E-Autos oder E-Fahrräder leihen können.

Für die soziale Infrastruktur im Pioneer Park plant die Stadt Hanau den Bau einer Kindertagesstätte sowie einer inklusiven Grundschule mit Turnhalle. Die Kita soll Platz für bis zu 175 Kinder bieten. Voraussichtlicher Baustart für die Kindertagesstätte wird Anfang 2020 sein, die Fertigstellung ist für Winter 2021 vorgesehen. Die Grundschule wird voraussichtlich ab Sommer 2023 nutzbar sein.

 



Pressekontakt: Stadt Hanau, Güzin Langner, Telefon 06181/295-929




Zu dieser Meldung können wir Ihnen folgende Medien anbieten:

.
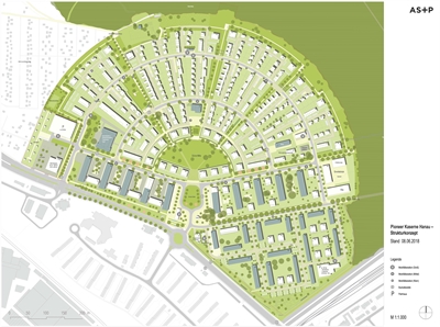
Das Strukturkonzept für den Pioneer Park Hanau. Quelle: Albert Speer & Partner


.
Die PionierWerk GmbH setzt auf innovative Konzepte bei Versorgung und Mobilität: im Bild die geplante Energiezentrale am Eingang des Pioneer Park sowie eine der insgesamt geplanten 15 Mobilitätsstationen.


.
Die Erschließungsarbeiten laufen auf Hochtouren, die alten Lagerhallen sind inzwischen weitgehend abgerissen worden. (Luftbild Stand 08/2019)


[Zurück]


Stadt Hanau
Öffentlichkeitsarbeit
Am Markt 14-18
63450 Hanau

Oeffentlichkeitsarbeit@hanau.de

Die Pressestelle "Stadt Hanau" ist Mitglied bei presse-service.de [http://www.presse-service.de/]. Dort können Sie Mitteilungen weiterer Pressestellen recherchieren und per E-Mail abonnieren.