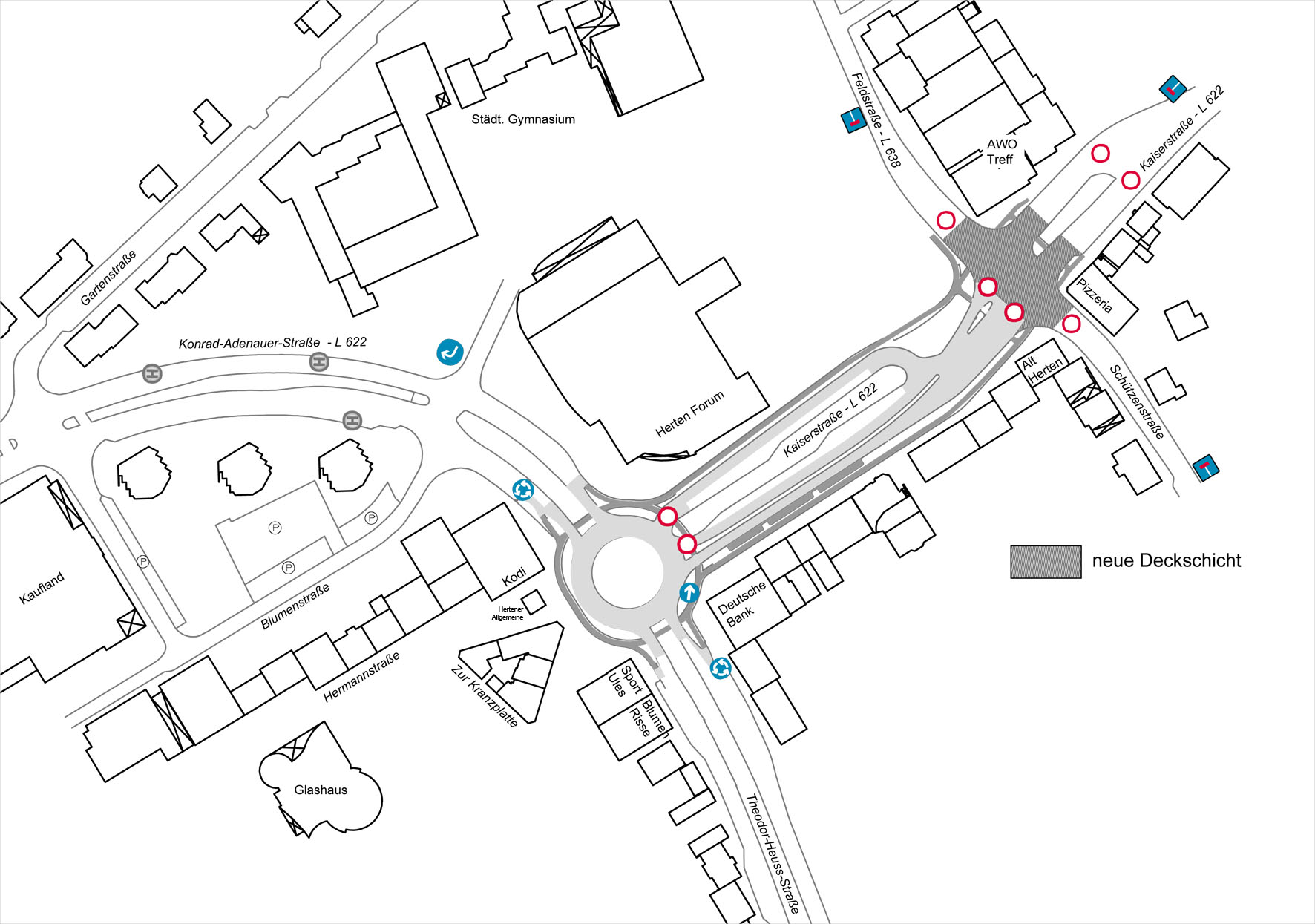
Von Freitag, 21. März, ab 14 Uhr bis Sonntag 23. März 2014, 18 Uhr darf kein Fahrzeug den Knotenpunkt Kaiserstraße/Feldstraße/Schützenstraße passieren.
Um das Medium auf Ihrem Rechner zu speichern,
klicken Sie bitte auf das Vorschaubild/-symbol.
(Das Medium hat eine Größe von 317,627 kB)
Die im Presse-Service zum Download angebotenen Fotos dürfen nur mit Fotonachweis und gemeinsam mit der Pressemitteilung oder dem Thema verwendet werden, in deren Zusammenhang sie veröffentlicht wurden. Eine gesonderte Verwendung der Fotos ist nicht gestattet. Bei Ausstellungen ist die Reproduktion nur im Rahmen der aktuellen Berichterstattung zur Ausstellung erlaubt. Bei einer anderweiten Nutzung sind Sie verpflichtet, selbstständig die Fragen des Nutzungsrechts zu klären.
Sämtliche Texte können unter Angabe der Quelle frei veröffentlicht werden, Belegexemplare sind willkommen.
Die Pressestelle " Stadt Herten" ist Mitglied bei presse-service.de [ www.presse-service.de]. Dort können Sie Mitteilungen weiterer Pressestellen recherchieren und als RSS-Feed oder E-Mail abonnieren.